CCTV Drainage Surveys
No matter how complex your drainage system, our surveyors provide the most comprehensive CCTV Drainage Survey available. Our CCTV drainage investigations offer insight and survey-grade precision. From domestic properties to complex sewer systems requiring confined space entry, we have the skills and the knowledge to provide the highest quality surveys.
Comprehensive CCTV Drainage Surveys
No matter how complex your drainage system, our surveyors provide the most comprehensive CCTV Drainage Survey available. Our CCTV underground drainage surveys offer insight and survey-grade precision. From domestic properties to complex sewer systems requiring confined space entry, we have the skills and the knowledge to provide the highest quality surveys.
Traditionally, this specialised CCTV drainage survey service was carried out by drainage companies, necessitating architects, engineers, and developers to handle it as a separate contract. However, by integrating this service you can now access all the necessary drainage information without the hassle of managing multiple contracts, ensuring a smoother and more efficient experience for your projects.
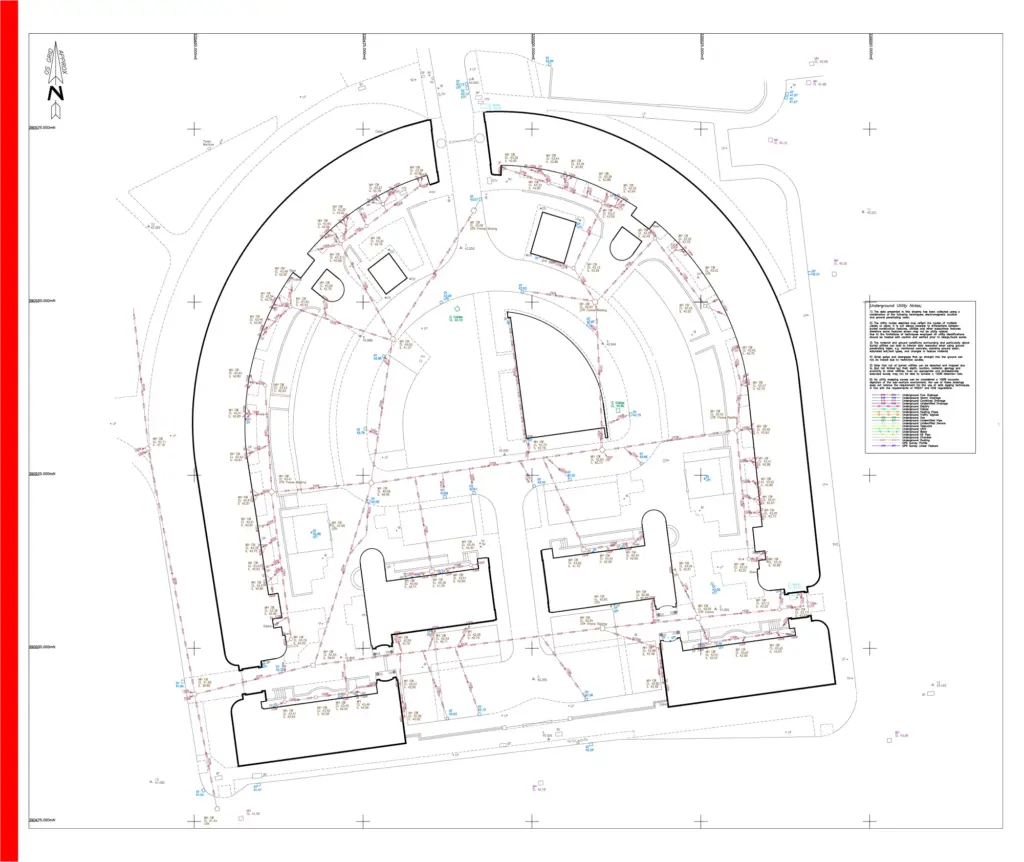
In addition to supplying Condition Reports and CCTV footage, we take pride in delivering a fully coordinated, accurate drainage layout plan with deliverables available in both AutoCAD (.dwg) and PDF formats.
For complex sites, we offer a full consultancy package alongside CCTV drainage surveys, handling all necessary arrangements including traffic management, confined space entry and jetting facilities.

Traditionally, this specialised service was carried out by drainage companies, necessitating architects, engineers, and developers to handle it as a separate contract. However, by integrating this service you can now access all the necessary drainage information without the hassle of managing multiple contracts, ensuring a smoother and more efficient experience for your projects.
In addition to supplying Condition Reports and CCTV footage, we take pride in delivering a fully coordinated, accurate drainage layout plan available in both AutoCAD (.dwg) and PDF formats.
For complex sites, we offer a full consultancy package, handling all necessary arrangements including traffic management, confined space entry and jetting facilities.
More Details
Why Choose Laser Surveys…
Testimonials
“Thank you for the dvd of the CCTV video and report. Well done for achieving the deadline, which is much appreciated.”








